合肥东门户30分钟到市区!总价不到主城1/3,860平大平层厂房出售 单价2字头
1 合肥东门户30分钟到市区!总价不到主城1/3,大平层厂房正在清盘
2 安徽“隐形冠军”扎堆地!一座产业大厦收官,最后数席错过再无
3 把工厂搬出高价区:地铁+高速+机场全配齐,这场政企合谋太狠了
① 开场
“厂房租金又涨8%?”
“工人招不来,交通还堵车?”
别熬了,这一次,我们把视线东移30公里——合肥肥东,一座正在收官的智能制造产业园,给出老板们“逃离高成本”的最优解。

② 区位一句话
合肥东大门·繁华大道首排,合肥循环经济示范园核心,政府盖章的“省级特色产业园”。
③ 交通王炸
30min到合肥市区(繁华大道+裕溪路高架无缝衔接)
20min到合肥南站,60km新桥机场
地铁2号线延长线底站仅2km,撮镇站4km
G3京台、G40沪陕、G5011芜合三大高速围合,6个下道口——货车下班不堵车。
④ 政策东风2025
安徽省“十四五”重点打造18个特色园区之一
入驻即享“前三年所得税区级留成100%奖励”
高端装备、电子信息、汽车零部件三大产业目录,购地即拿50年独立产权。
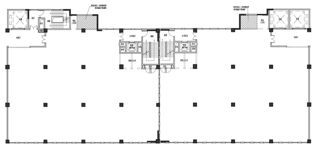
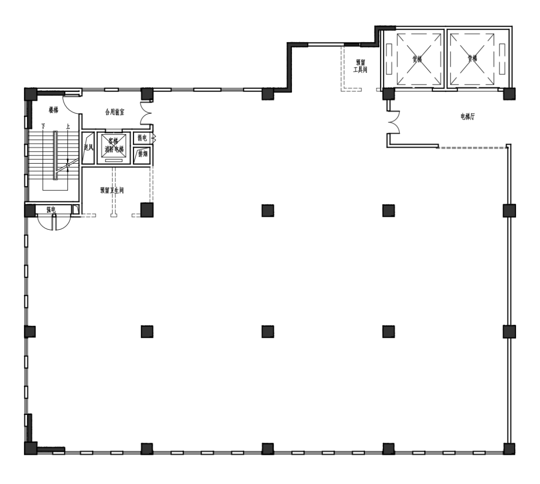
⑤ 项目速写
226亩,19万㎡,总投资15亿元
44栋标准厂房+1栋11层产业大厦+1栋人才公寓+食堂+超市+会务中心
收官阶段:仅剩产业大厦数套+双拼独栋1栋,卖一套少一套。
⑥ 产品亮点
860㎡/1600㎡两种主力面积,自由组合
11层双拼框架,柱距8米,层高4.2米,一层可当两层用
楼面承重5吨,预留丙类消防,重型设备直接上楼
50年独立产权,可抵押、可转让、可代代传承。
⑦ 成本对比
合肥主城工业用地成交价≈120万/亩,这里≈45万/亩
主城写字楼单价1.2万+,产业大厦均价仅2字头
同样1600㎡,主城年租金≈200万,这里10年省下近千万。

⑧ 配套生活圈
园区自带食堂、超市、蓝领公寓
3km范围内撮镇中心学校、医院、商业综合体
周末市区地铁直达,员工稳了,招工不再难。

⑨ 明星邻居
已有世界500强配套商、安徽“专精特新”小巨人、新能源汽零龙头签约投产,产业链上下游就在上下楼。
⑩ 清盘倒计时
产业大厦仅剩最后数层,独栋厂房剩1席
⑪ 看厂路线
自驾:导航“锦和智能制造产业园”(繁华大道与四顶山路交口)
地铁:2号线延长线(2025年6月通车)底站下,专车接送
⑫ 总结
低地价、低电价、低物流成本,30分钟还能喝市区的咖啡。
把工厂搬出“高价区”,利润直接涨出一条新产线!
最后几个席位,留给会算账的老板。
肥东研发办公厂房土地选址 13524678515
图片内容如有侵权请联系我,速删除

产业招商/厂房土地租售:400 0123 021
或微信/手机:13524678515; 13564686846; 13391219793
请说明您的需求、用途、税收、公司、联系人、手机号,以便快速帮您对接资源。
长按/扫一扫加葛毅明的微信号
扫一扫关注公众号
扫描二维码推送至手机访问。
版权声明:本文由中国产业园区招商网发布,如需转载请注明出处。部份内容收集于网络,如有不妥之处请联系我们删除 13391219793 仅微信













