上海松江厂房出租 松江区稀缺的一楼大面积厂房 104地块 7.8m层高 大虹桥 近地铁26平起租
上海松江厂房出租 松江区稀缺的一楼大面积厂房 104地块 7.8m层高 大虹桥 近地铁26平起租
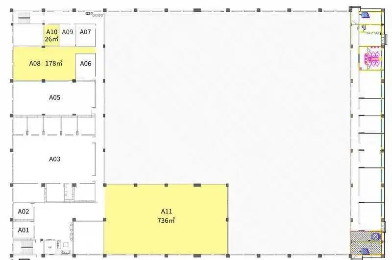
【项目】交科医疗健康产业园
【地址】米易路166号(近泗泾地铁站1公里)
【面积】26㎡-1838㎡(可分租)
【层高】4-7.8m
【环评】104地块,可环评,可进行二三类医疗器械注册
【租金】1.3-1.6元/平/天(含税)
【物业】物业费5元/平/月
【承重】1楼无地下车库,2楼500KG
【柱距】8.5m*7.5m
【电梯】客梯1部、货梯1部(3T)
【消防】丙二类
【业态】生产/研发/办公(医疗器械、智能制造、新材料、人工智能、电气设备、汽车零配件、集成电路、电子芯片、生物医药、贸易电商等行业及办公配套等)
【周边企业】中建材凯盛、三旺通信、智巡密码、柯马、玉丹药业等优秀企业
【公交】园区门口有接驳车,直达泗泾地铁站
【配套】人才公寓、餐饮、咖啡店、便利店、 班车 、口袋公园、网球篮球等场馆
【交通】毗邻G15、G60高速入口;20分钟直达虹桥交通枢纽





研发办公厂房土地招商咨询 以下微信
免责声明:
1.部分文字和图片来源于网络不对相关图片内容享有任何权利
2.我方重申:所有转载的文章、图片、音频视频文件等资料知识产权归该权利人所有,但因技术能力有限无法查得知识产权来源而无法直接与版权人联系授权事宜,若转载图片可能存在引用不当或版权争议因素,请相关权利方及时通知我们,以便我方迅速删除相关图文内容,避免给双方造成不必要的损失;
3.因文章中文字和图片之间亦无必然联系,仅供读者参考。
文章来源《网络》

产业招商/厂房土地租售:400 0123 021
或微信/手机:13524678515; 13524678515; 13524678515
请说明您的需求、用途、税收、公司、联系人、手机号,以便快速帮您对接资源。
长按/扫一扫加葛毅明的微信号
扫一扫关注公众号
扫描二维码推送至手机访问。
版权声明:本文由中国产业园区招商网发布,如需转载请注明出处。部份内容收集于网络,如有不妥之处请联系我们删除 13524678515 仅微信

















