上海浦东金桥办公室出租 东方万国企业中心 B1 373.07㎡精装办公空间
上海浦东金桥办公室出租 东方万国企业中心 B1 373.07㎡精装办公空间
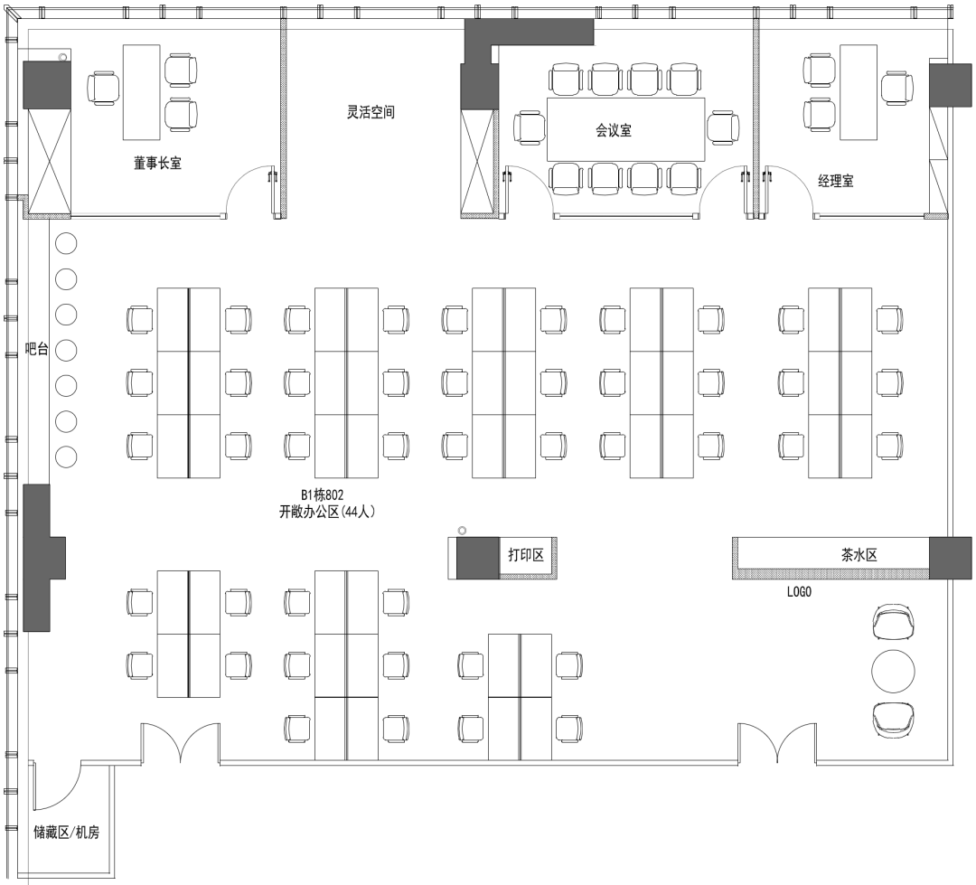
【房型】44工位+4隔间+前台+茶水打印区
【面积】373.07㎡
【租金】3.3-3.5元/㎡/天 价格可谈
【物业费】24.4元/㎡/月、
精装修交付,省时省心极速入驻
标准层净高≥2.8m,空间高阔舒适
约9米进深,布局自由,创造力不设限
B1 单元平面布局图





约30万方城市商务综合体3分钟生活圈 高效办公 精彩生活占位金桥经济技术开发区,产业高地地铁6/12/14号线环绕左右园区班车接送,地铁站-园区无缝衔接30万方综合体之上,办公、商业、会议中心等多元业态共融LEED O+M金级认证,绿色办公领地
多元美食:咖啡轻饮、风味美食品牌齐聚会议会展:1000㎡多功能会议空间,可容纳800人 活力运动:游泳、瑜伽、健身空间零距离青年社区:约20,000㎡,高品质公寓和酒店在侧
研发办公厂房土地招商咨询 以下微信
免责声明:
1.部分文字和图片来源于网络不对相关图片内容享有任何权利
2.我方重申:所有转载的文章、图片、音频视频文件等资料知识产权归该权利人所有,但因技术能力有限无法查得知识产权来源而无法直接与版权人联系授权事宜,若转载图片可能存在引用不当或版权争议因素,请相关权利方及时通知我们,以便我方迅速删除相关图文内容,避免给双方造成不必要的损失;
3.因文章中文字和图片之间亦无必然联系,仅供读者参考。
文章来源《网络》

产业招商/厂房土地租售:400 0123 021
或微信/手机:13524678515; 13524678515; 13524678515
请说明您的需求、用途、税收、公司、联系人、手机号,以便快速帮您对接资源。
长按/扫一扫加葛毅明的微信号
扫一扫关注公众号
扫描二维码推送至手机访问。
版权声明:本文由中国产业园区招商网发布,如需转载请注明出处。部份内容收集于网络,如有不妥之处请联系我们删除 13524678515 仅微信


















