南昌厂房出售 新建厂房出售 独栋厂房1500平起 中南高科南昌新建数字化智造产业园——江西智能制造产业新高地

南昌新建数字化智造产业园——江西智能制造产业新高地
园区简介
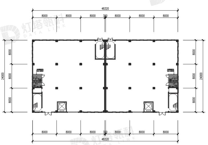
南昌新建数字化智造产业园位于南昌市望城新区核心位置,总占地261亩,建筑面积17.38万㎡。园区分两期开发,一期59栋厂房已全面投产,二期37栋厂房正在建设中。项目聚焦新能源、汽车零部件、生物医药等产业,打造集生产、研发、配套于一体的现代化产业基地,预计全部建成后将引进115家优质企业。
核心优势
区位交通便捷:地处南昌西大门,4.3公里直达物流中心,快速连接九龙湖新区及南昌主城区。
产业定位精准:重点培育新能源汽车与精密仪器产业链,已形成优质企业集群效应。
产品灵活适配:提供2-3层独栋厂房,首层8.1米层高,面积1500-4000㎡可选,满足不同规模企业需求。
项目亮点
均价3550元/㎡,工业用电0.56-0.75元/度,独栋物业费1.8元/㎡,运营成本优势显著。
6度抗震,丁类消防标准,毛坯/精装灵活选择,保障企业生产需求。
配套食堂、公寓,实现"生产+生活"一站式解决方案,提升员工满意度。












全国200+产业园厂房招商中
总部招商中心 13524678515 葛毅明更多厂房土地 请点击【园区产业招商】
欢迎关注、点赞、转发
欢迎关注、点赞、转发
免责声明:
1.部分文字和图片来源于网络不对相关图片内容享有任何权利
2.我方重申:所有转载的文章、图片、音频视频文件等资料知识产权归该权利人所有,但因技术能力有限无法查得知识产权来源而无法直接与版权人联系授权事宜,若转载图片可能存在引用不当或版权争议因素,请相关权利方及时通知我们,以便我方迅速删除相关图文内容,避免给双方造成不必要的损失;
3.因文章中文字和图片之间亦无必然联系,仅供读者参考。
文章来源《网络》

产业招商/厂房土地租售:400 0123 021
或微信/手机:13524678515; 13524678515; 13524678515
请说明您的需求、用途、税收、公司、联系人、手机号,以便快速帮您对接资源。
长按/扫一扫加葛毅明的微信号
扫一扫关注公众号
扫描二维码推送至手机访问。
版权声明:本文由中国产业园区招商网发布,如需转载请注明出处。部份内容收集于网络,如有不妥之处请联系我们删除 13524678515 仅微信


















